Mieten | Wohnungen | mm2087

Raumwunder mit Balkon am Packhof!

Lage

Der Packhof ist eine beliebte und aufstrebende Wohngegend Brandenburgs. Zentral gelegen und doch ruhig, grün und in Wassernähe. Von hier haben Sie in wenigen Gehminuten Anbindung an den öffentlichen Nahverkehr und zahlreiche Einkaufsmöglichkeiten in der Innenstadt. Sie erreichen das Theater, Cafés, Bars und Restaurants zu Fuß.

Objektbeschreibung

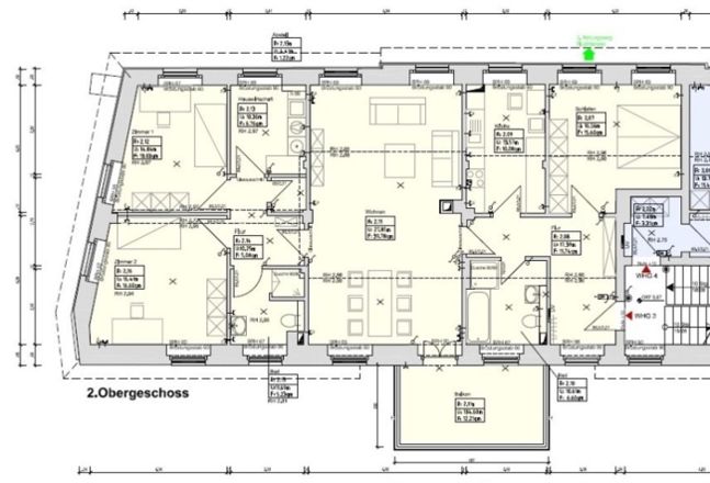
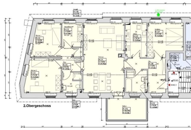
Die im 2. Obergeschoss liegende 4-Zimmer-Wohnung überzeugt mit einer Größe von ca. 137,28 m². Diese Wohnung besteht aus einem lichtdurchfluteten, großzügig geschnittenen Wohnzimmer, drei Schlafräumen, zwei modern gefliesten Bädern mit Dusche und Badewanne, einem Hauswirtschaftsraum mit Anschluss für Waschmaschine und Trockner, einer Küche und einem Balkon. Der Parkettboden im Wohnzimmer verleiht dem Raum zusätzlich zu dem vorhandenen Kamin ein besonderes Ambiente, von dort an gelangen Sie auch auf den Balkon. Das Hauptbadezimmer ist mit einer Dusche sowie einer Badewanne ausgestattet, sodass auch hier keine Wünsche offen bleiben. Im zweiten Bad befindet sich ebenso eine Dusche. In den Schlafräumen wurde Linoleum verlegt. Zur Wohnung gehört ebenso ein Mieterkeller. Anmietung von 1 bis 2 PKW-Stellplätzen wäre möglich.

Sonstiges

Es liegt ein Energieverbrauchsausweis vor. Dieser ist gültig bis 22.4.2031. Endenergieverbrauch beträgt 94.80 kwh/(m²*a). Wesentlicher Energieträger der Heizung ist Gas. Die Energieeffizienzklasse ist C. Wir hoffen, Ihnen ein interessantes Angebot unterbreitet zu haben und freuen uns auf Ihren Anruf oder Ihre E-Mail.

Wohnfläche: 137,28 m²
Anzahl Zimmer: 4
Anzahl Badezimmer: 2
Grundmiete: 1.648,00 €
Gesamtmiete: 2.053,00 €
Heizkosten enthalten:
Verfügbar ab: 01.04.2026
PLZ: 14776
Ort: Brandenburg an der Havel
Straße: Packhofstr.
Hausnummer: 30
Etage: 2
Regionaler Zusatz: Innenstadt
Energieausweistyp: Verbrauch
Energieverbrauch: 94,80 kWh/(a*m2)
Baujahr: 1912
Befeuerungsart: Gas
Warmwasser enthalten: Nein
Referenznummer: mm2087
Mechtel Mareike

Ansprechpartner

Mareike Mechtel

00493381528652
E-Mail schreiben

Anbieter kontaktieren

Bitte rechnen Sie 3 plus 6.