Mieten | Wohnungen | mm2119

Penthouse im Herzen von Brandenburg!

Lage

Unser hier angebotenes neues Wohnobjekt liegt in einem beliebten Teil der Innenstadt. Einkaufsmöglichkeiten, Schulen und Kindergärten erreichen Sie sehr schnell zu Fuß. In der Innenstadt erwarten Sie gemütliche Cafés, ob direkt am Wasser oder in der Einkaufsstraße. Entlang der Hauptstraße und im Sankt Annen Center gibt es weitere Geschäfte und Einkaufsmöglichkeiten.

Objektbeschreibung

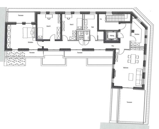
Die im Jahr 2023 errichtete Neubauwohnung umfasst vier Zimmer und erstreckt sich über das gesamte Dachgeschoss. Ein Personenaufzug ermöglicht den komfortablen, barrierearmen Zugang bis zur Wohnungsebene. Der Grundriss bietet ein Schlafzimmer mit Zugang zu einer Terrasse, zwei Kinderzimmer, ein Badezimmer mit Badewanne sowie ein separates Gäste-WC. Eine separate Küche und ein großzügiger, lichtdurchfluteter Wohnbereich mit ansprechender Terrasse runden das Raumangebot ab. Ein praktischer Hauswirtschaftsraum mit Waschmaschinenanschluss schafft zusätzlichen Stauraum für nicht täglich benötigte Gegenstände. Ausgestattet ist die Wohnung mit weißen Holzzimmertüren und einem modernen Vinylbodenbelag. Für ein angenehmes Wohnklima sorgt eine Fußbodenheizung, die in jedem Raum individuell regulierbar ist. Eine Video-Wechselsprechanlage bietet zusätzliche Sicherheit und Komfort im Alltag.

Sonstiges

Es liegt ein Energiebedarfsausweis vor. Dieser ist gültig bis 11.10.2032. Endenergiebedarf beträgt 26.90 kwh/(m²*a). Wesentlicher Energieträger der Heizung ist Gas. Das Baujahr des Objekts lt. Energieausweis ist 2022. Die Energieeffizienzklasse ist A+. Wir hoffen, Ihnen ein interessantes Angebot unterbreitet zu haben und freuen uns auf Ihren Anruf oder Ihre E-Mail.

Wohnfläche: 163,16 m²
Anzahl Zimmer: 4
Anzahl Badezimmer: 1
Grundmiete: 1.991,00 €
Gesamtmiete: 2.541,00 €
Heizkosten enthalten:
Verfügbar ab: 01.08.2026
PLZ: 14776
Ort: Brandenburg an der Havel
Straße: Neustädtische Fischerstraße
Hausnummer: 12
Regionaler Zusatz: Innenstadt
Stellplätze:
Energieausweistyp: Bedarf
Baujahr: 2022
Befeuerungsart: Gas
Warmwasser enthalten: Nein
Referenznummer: mm2119
Mechtel Mareike

Ansprechpartner

Mareike Mechtel

00493381528652
E-Mail schreiben

Anbieter kontaktieren

Bitte addieren Sie 3 und 1.