Mieten | Büros und Praxen | mm2069

Ladeneinheit oder Büro mit repräsentativer Schaufensterfront in Top-Innenstadtlage!

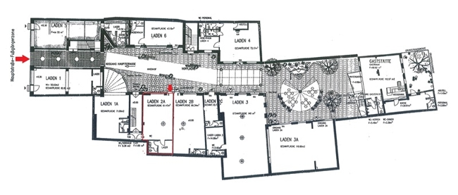
Lage

Die zur Vermietung stehende Verkaufsfläche befindet sich in Brandenburg an der Havel in der Hauptstr. 21 - besser bekannt als Bollmannpassage - inmitten der Brandenburger Fußgängerzone und somit in 1a-Geschäftslage. Durch die nur 9 km entfernte Autobahn A2 und die Anbindung an die Bundesstraßen B1 und B102 ist Brandenburg hervorragend in das überregionale Infrastruktursystem integriert.

Objektbeschreibung

Die angebotene Einheit befindet sich in einer belebten Brandenburger Einkaufspassage und umfasst eine Fläche von ca. 61,47 m². Sie gliedert sich in eine offen gestaltete Verkaufs-, Bürofläche mit großer, dekorativer Schaufensterfront sowie angrenzendem kleinen Teeküche/ Lager mit Zugang zur Toilette auf. Am Standort sind bereits zahlreiche Gewerbetreibende vertreten. Zahlreiche Fußgänger und somit auch potenzielle Kundschaft sind Ihnen sicher. Stimmen Sie noch heute einen Besichtigungstermin mit uns ab.

Sonstiges

Es liegt ein Energiebedarfsausweis vor. Dieser ist gültig bis 14.8.2035. Endenergiebedarf beträgt 149.60 kwh/(m²*a). Wesentlicher Energieträger der Heizung ist Gas. Wir hoffen, Ihnen ein interessantes Angebot unterbreitet zu haben und freuen uns auf Ihren Anruf oder Ihre E-Mail.

Gesamtfläche: 61,47 m²
Grundmiete: 671,00 €
Nebenkosten: 245,00 €
Gesamtmiete: 916,00 €
Heizkosten enthalten:
PLZ: 14776
Ort: Brandenburg an der Havel
Straße: Hauptstr.
Hausnummer: 21
Regionaler Zusatz: Innenstadt
Energieausweistyp: Bedarf
Baujahr: 1898
Warmwasser enthalten: Nein
Referenznummer: mm2069
Mechtel Mareike

Ansprechpartner

Mareike Mechtel

00493381528652
E-Mail schreiben

Anbieter kontaktieren

Bitte rechnen Sie 7 plus 7.