Mieten | Wohnungen | mm2075

Fußbodenheizung*Balkon-am Jacobsgraben-2-Zimmer-Whg.

Lage

Unser hier angebotenes neues Wohnobjekt liegt in einem beliebten Teil der Neustadt. Einkaufsmöglichkeiten, Schulen und Kindergärten erreichen Sie sehr schnell zu Fuß. Der Stadtpark, nicht weit von Ihrer Wohnung entfernt, führt direkt in die Innenstadt, die Sie in nur wenigen Minuten zu Fuß entlang der Havel erreichen können. Dort erwarten Sie gemütliche Cafés, ob direkt am Wasser oder in der Einkaufsstraße. Entlang der Hauptstraße und im Sankt Annen Center gibt es weitere Geschäfte und Einkaufsmöglichkeiten.

Objektbeschreibung

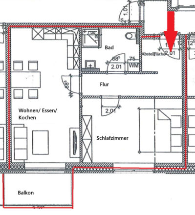
Die angebotene Wohnung verfügt über zwei Zimmer und gliedert sich in ein Schlaf-, einem Badezimmer mit Dusche und einem Wohnbereich mit einem offenen Küchenbereich inkl. Einbauküche. Auf dem Balkon, den Sie vom Wohnzimmer aus erreichen, können Sie Ihren Feierabend ausklingen lassen. Für die Wärme und den Komfort sorgt die Fußbodenheizung, welche sich individuell in jedem Raum separat regulieren lässt. Bei einem KfW-Energieeffizienzhaus 40 ist der Wärmeenergieverbrauch um 60 % geringer als bei einem vergleichbaren Neubau. Dieser geringere Energieverbrauch wird durch einen umfangreichen Wärmeschutz und eine hochwertige Dach- und Bodenplattendämmung gewährleistet.

Sonstiges

Es liegt ein Energiebedarfsausweis vor. Dieser ist gültig bis 4.7.2029. Endenergiebedarf beträgt 46.50 kwh/(m²*a). Wesentlicher Energieträger der Heizung ist Blockheizkraftwerk. Das Baujahr des Objekts lt. Energieausweis ist 2020. Die Energieeffizienzklasse ist A. Wir hoffen, Ihnen ein interessantes Angebot unterbreitet zu haben und freuen uns auf Ihren Anruf oder Ihre E-Mail.

Wohnfläche: 60,00 m²
Anzahl Zimmer: 2
Anzahl Badezimmer: 1
Grundmiete: 650,00 €
Gesamtmiete: 860,00 €
Heizkosten enthalten:
Verfügbar ab: ab sofort
PLZ: 14776
Ort: Brandenburg an der Havel
Straße: Jahnstraße
Hausnummer: 4 A
Etage: 1
Regionaler Zusatz: Neustadt
Stellplätze:
Energieausweistyp: Bedarf
Baujahr: 2020
Befeuerungsart: Gas
Warmwasser enthalten: Nein
Referenznummer: mm2075
Mechtel Mareike

Ansprechpartner

Mareike Mechtel

00493381528652
E-Mail schreiben

Anbieter kontaktieren

Bitte addieren Sie 7 und 5.