Mieten | Wohnungen | mm2062

Exklusive Lage! 3-Zimmer-Wohnung mit Aufzug!

Lage

Unser hier angebotenes neues Wohnobjekt liegt in einem beliebten Teil der Innenstadt. Einkaufsmöglichkeiten, Schulen und Kindergärten erreichen Sie sehr schnell zu Fuß. In der Innenstadt erwarten Sie gemütliche Cafe´s, ob direkt am Wasser oder in der Einkaufsstraße. Entlang der Hauptstraße und im Sankt Annen Center gibt es weitere Geschäfte und Einkaufsmöglichkeiten.

Objektbeschreibung

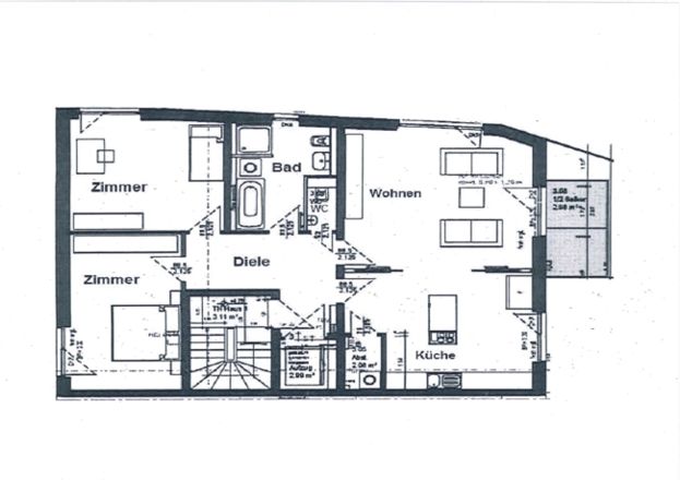
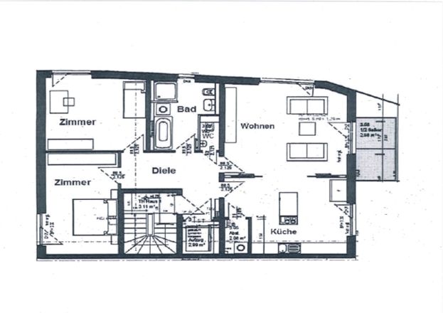
Die angebotene Wohnung verfügt über 3-Zimmer und gliedert sich in ein Schlaf-, Kinder- oder Arbeitszimmer, einem Badezimmer mit Dusche und Badewanne, einem Wohnbereich mit offener Küche. Ein separates WC können Sie Ihren Gästen zum frisch machen anbieten, ohne das Familienbad zu belegen. Ein Hauswirtschaftsraum sorgt für zusätzlichen Platz, für die Dinge, die Sie nicht alltäglich benötigen. Vom Wohnbereich aus gelangen Sie auf den Balkon, welcher zum Verweilen einlädt. Der vorhandene Aufzug führt Sie direkt von der Garage in Ihre Wohnung. Sehen, wer vor der Tür steht, kein Problem mit der installierten Video-Wechselsprechanlage. Für die Wärme und den Komfort sorgt die Fußbodenheizung, welche sich individuell in jedem Raum separat regulieren lässt. Heizung und Warmwasser werden zentral aufbereitet, mit Gas, ergänzend dazu wird eine Luft-Luft-Wärmepumpe eingesetzt. Ein Stellplatz in der Garage steht Ihnen für 90,00 € monatlich zur Verfügung.

Sonstiges

Es liegt ein Energiebedarfsausweis vor. Dieser ist gültig bis 20.6.2032. Endenergiebedarf beträgt 27.80 kwh/(m²*a). Wesentlicher Energieträger der Heizung ist Ergänzendes dezentrales Warmwasser. Das Baujahr des Objekts lt. Energieausweis ist 2022. Die Energieeffizienzklasse ist A. Wir hoffen, Ihnen ein interessantes Angebot unterbreitet zu haben und freuen uns auf Ihren Anruf oder Ihre E-Mail.

Wohnfläche: 112,00 m²
Anzahl Zimmer: 3
Anzahl Badezimmer: 1
Grundmiete: 1.422,00 €
Gesamtmiete: 1.832,00 €
Heizkosten enthalten:
Verfügbar ab: 01.02.2026
PLZ: 14776
Ort: Brandenburg an der Havel
Straße: Neustädtischer Markt
Hausnummer: 18
Etage: 2
Regionaler Zusatz: Innenstadt
Stellplätze:
Energieausweistyp: Bedarf
Baujahr: 2022
Befeuerungsart: Gas
Warmwasser enthalten: Nein
Referenznummer: mm2062
Mechtel Mareike

Ansprechpartner

Mareike Mechtel

00493381528652
E-Mail schreiben

Anbieter kontaktieren

Was ist die Summe aus 4 und 8?