


Lage
Die Immobilie liegt inmitten einer angenehmen Wohngegend und bietet somit eine ideale Umgebung für Familien oder Personen, die Ruhe und Entspannung suchen. Die Verkehrsanbindung ist ebenfalls optimal. Die Autobahn ist in kurzer Zeit erreichbar, was eine schnelle Anbindung an umliegende Städte und Regionen ermöglicht. Auch der öffentliche Nahverkehr ist gut ausgebaut, sodass eine problemlose Erreichbarkeit des Stadtzentrums gewährleistet ist. Insgesamt bietet diese Immobilie eine perfekte Kombination aus einer ruhigen und dennoch gut angebundenen Lage sowie einer hochwertigen Ausstattung. Sie eignet sich ideal für Familien, die ein komfortables Zuhause in einer attraktiven Umgebung suchen.
Ausstattung
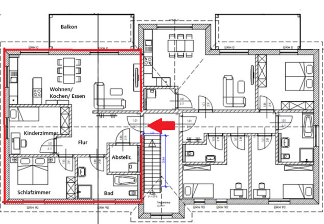
Diese hochwertige Immobilie besticht durch eine moderne Ausstattung, die keine Wünsche offenlässt. Die Fußbodenheizung sorgt in allen Räumen für behagliche Wärme und wird durch eine effiziente Luft/Wasser Wärmepumpe gespeist, was ein nachhaltiges Energiekonzept sicherstellt. Haben Sie keine Angst mehr vor steigenden Gaspreisen. In dieser Wohnung garantieren wir Ihnen für die nächsten 5 Jahre Heizkosten von 0,60 EUR/ qm monatlich. Großzügige Fensterflächen ermöglichen viel natürliches Licht und schaffen ein angenehm helles Ambiente. Die offene Küche, harmonisch integriert in den Wohnbereich, lädt zu geselligen Kochabenden ein. Das Badezimmer bietet sowohl eine Dusche als auch eine Badewanne und erfüllt damit höchste Komfortansprüche. Darüber hinaus ist für Ihre Medienunterhaltung durch Kabel Sat TV bestens gesorgt. Ein zusätzlicher Abstellraum bietet praktischen Stauraum für diverse Haushaltsutensilien. Im Außenbereich überzeugt die Immobilie mit einem schönen Balkon, der ideal für entspannte Stunden im Freien ist. Ein Stellplatz kann gegen eine Gebühr von 30,00 € genutzt werden. Die Immobilie erfüllt den KfW55-Standard, was für eine energieeffiziente Bauweise steht und durch das dezentrale Warmwassersystem zusätzlich ergänzt wird. Verpassen Sie nicht die Gelegenheit, dieses exklusive Angebot zu entdecken.
Objektbeschreibung
Willkommen in Ihrem neuen Zuhause im Herzen von Brandenburg an der Havel, im charmanten Stadtteil Neuschmerzke. Diese erstklassige Wohnung in einem modernen Mehrfamilienhaus besticht durch ihre hochwertige Ausstattung und den Komfort eines Erstbezugs. Die Wohnung, die ab dem 01.01.2026 verfügbar ist, bietet auf großzügigen ca. 95,37 qm Wohnfläche ein harmonisches Wohnkonzept. Mit drei Zimmern schafft sie eine ideale Raumaufteilung für Paare oder kleine Familien, die viel Wert auf eine gehobene Wohnqualität legen. Das im Jahr 2025 erbaute Gebäude verbindet zeitgemäße Architektur mit funktionalen Wohnlösungen und fügt sich nahtlos in das idyllische Umfeld von Brandenburg an der Havel ein. Lassen Sie sich von der hervorragenden Lage und der modernen Ausführung begeistern und erleben Sie, wie diese Immobilie all Ihre Wohnträume wahr werden lässt. Nutzen Sie diese Gelegenheit für einen Erstbezug in einer der aufstrebendsten Gegenden der Region. Kontaktieren Sie uns für weitere Informationen oder um einen Besichtigungstermin zu vereinbaren. Wir freuen uns darauf, Ihnen diese wunderbare Immobilie vorstellen zu dürfen.
Sonstiges
Es liegt ein Energiebedarfsausweis vor. Dieser ist gültig bis 23.6.2034. Endenergiebedarf beträgt 19.50 kwh/(m²*a). Die Energieeffizienzklasse ist A+. Wir hoffen, Ihnen ein interessantes Angebot unterbreitet zu haben und freuen uns auf Ihren Anruf oder Ihre E-Mail.
Wohnfläche: | 95,37 m² |
---|---|
Anzahl Zimmer: | 3 |
Grundmiete: | 1.240,00 € |
Gesamtmiete: | 1.430,00 € |
Verfügbar ab: | 01.01.2026 |
PLZ: | 14776 |
Ort: | Brandenburg an der Havel / Neuschmerzke |
Straße: | Dornröschenweg |
Hausnummer: | 24 |
Etage: | 1 |
Energieausweistyp: | Bedarf |
Baujahr: | 2024 |
Befeuerungsart: | Wärmepumpe LUFT |
Warmwasser enthalten: | Nein |
Referenznummer: | mm2005 |
