


Lage
Das von uns angebotene neue Wohnobjekt liegt in einem beliebten Teil der Altstadt. Einkaufsmöglichkeiten, Schulen und Kindergärten erreichen Sie in nur wenigen Gehminuten. Auch nicht weit von Ihrer Wohnung befindet sich die Bus- und Straßenbahnanbindung, sodass Sie schnell die Stadt oder den Hauptbahnhof erreichen. Der Stadtpark führt direkt in die Innenstadt, sodass Sie in nur wenigen Minuten die Innenstadt zu Fuß entlang der Havel erreichen können. Dort erwarten Sie gemütliche Cafés, ob direkt am Wasser oder in der Einkaufsstraße. Entlang der Hauptstraße und im Sankt Annen Center gibt es weitere Geschäfte und Einkaufsmöglichkeiten.
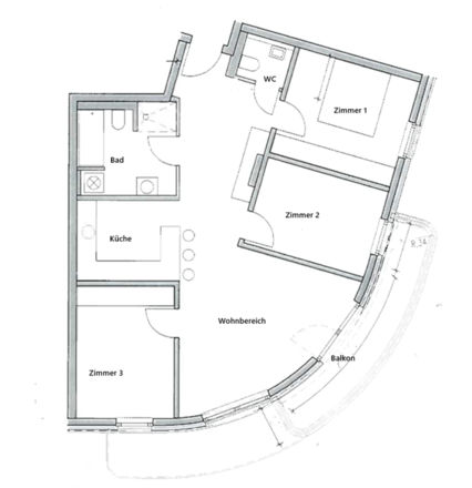
Objektbeschreibung
Das Mehrfamilienhaus wurde im Jahr 2020 neu errichtet. Das Haus verfügt über einen Aufzug, einen gemeinschaftlichen Fahrradabstellraum und einen kleinen Innenhof. Zu jeder Wohneinheit gehört ein Kellerabteil. Die Wohnung bestehend aus vier Zimmern umfasst ca. 95,45 m². Der Wohnbereich ist mit einer offenen Küche gestaltet. Das großzügige Badezimmer ist mit einer ebenerdigen Dusche und einer Badewanne versehen. Zusätzlich haben Sie ein Gäste-WC. Der Balkon lädt zum Verweilen ein.
Sonstiges
Es liegt ein Energiebedarfsausweis vor. Dieser ist gültig bis 8.3.2030. Endenergiebedarf beträgt 60.30 kwh/(m²*a). Wesentlicher Energieträger der Heizung ist Blockheizkraftwerk. Das Baujahr des Objekts lt. Energieausweis ist 2020. Die Energieeffizienzklasse ist B. Wir hoffen, Ihnen ein interessantes Angebot unterbreitet zu haben und freuen uns auf Ihren Anruf oder Ihre E-Mail.
Wohnfläche: | 95,45 m² |
---|---|
Anzahl Zimmer: | 4 |
Anzahl Badezimmer: | 1 |
Grundmiete: | 950,00 € |
Gesamtmiete: | 1.245,00 € |
Heizkosten enthalten: | |
Verfügbar ab: | 01.02.2026 |
PLZ: | 14770 |
Ort: | Brandenburg an der Havel |
Straße: | Neuendorfer Straße |
Hausnummer: | 21 A |
Etage: | 2 |
Regionaler Zusatz: | Altstadt |
Stellplätze: |
|
Energieausweistyp: | Bedarf |
Baujahr: | 2020 |
Befeuerungsart: | Gas |
Warmwasser enthalten: | Nein |
Referenznummer: | mm2056 |
